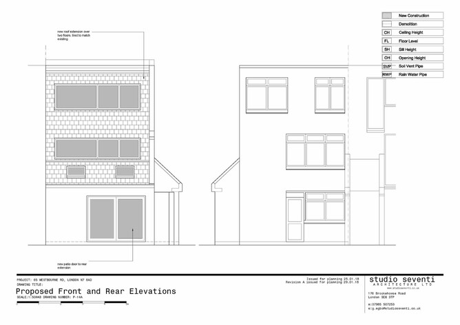
Double storey rear dormers adding valuable floorspace to dwellings on Westbourne Road and Bride Street, Holloway
WEA Planning gained planning permission for the construction of a double storey rear dormer extending the first and second floors of two prominent corner properties of the Westbourne Estate in Holloway (London Borough of Islington). The Westbourne Estate was designed by renowned architect Eric Lyons.
The clients contacted WEA Planning after a refused application for Certificate of Lawfulness as the unique roofshape of the two properties was deemed by LB Islington to not allow the double height dormer extensions allowed under permitted development elsewhere within the Westbourne Estate .
After receiving a negative pre-application response from LB Islington, two property owners teamed together and contacted WEA Planning to find a suitable approach to convince the council’s planning and design teams.
WEA Planning thoroughly researched precedents and put together a strong case to demonstrate that while the design breached the Council’s design guidance, it complemented other developments in the Westbourne Estate.
The permission will now enable both clients to move forward and implement this development which will extend their houses and get more floorspace for their respective families.

