Pinner Hill Estate Conservation Area
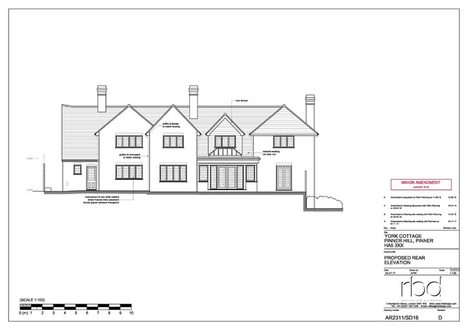
WEA Planning has been successful in obtaining planning permission for the erection of a two storey rear extension and rear dormer to a large detached house in the Pinner Hill Estate Conservation Area, London Borough of Harrow. The proposal also included extension and floor to ceiling height increase at lower ground/basement floor level to facilitate the conversion of the cellar to habitable space.
After a very negative pre-application advice, the applicant contacted WEA Planning to review the pre-application report and to advise on the form and design of the scheme and to manage the application.
WEA, working closely with RBD Architecture, provided a high-quality design solution which respects the character of the property but also achieves maximum square footage.
Once the application was submitted, WEA Planning kept in close contact with the planning officer. Some minor concerns relating to the driveway were raised by the council and the local community. WEA Planning ensured these queries were promptly dealt with to ensure the application continued to progress towards a recommendation for approval.
As part of the application the Council gave significant weight to arguments that WEA put forward through the application which demonstrated that the additional floor area and the proposed design would not harm the character of the conservation area and the amenity of the neighbouring properties.
Notwithstanding the fact that the site lies within the Metropolitan Green Belt, the Pinner Hill Area of Special Character and the Pinner Hill Estate Conservation Area, WEA Planning achieved permission for a floor area increase of 83% compared to the original building! A great result.
