Railings and rooflights on Chepstow Crescent, Notting Hill
WEA Planning gained planning permission for the installation of railings at roof level, and new rooflights for a top floor flat in a prominent property on Chepstow Crescent, Notting Hill (Royal Borough of Kensington and Chelsea).
The client contacted WEA Planning after receiving a negative pre-application response from RBKC. The brief was to help find a good design solution that would be supported by the planning and conservation teams.
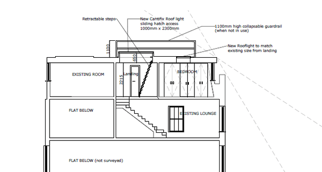
The installation and the railings and the new openable rooflights were a Health & Safety requirement to provide safe access to the roof of the building for the team responsible with the maintenance of this corner building.
A solution was found in collapsible railings and high quality rooflights. The high quality of the design ensures that the solution protects the character of Chepstow Crescent as part of the vibrant Notting Hill area.
The permission will now enable the applicant to move forward and implement this development which will provide a safe working environment for the building maintenance team as well as a great amount of daylight into the flat.
