Development Control Practice (DCP) describe as “Taking the Michael” but a recent prior approval appeal decision for a single storey side and rear extension (24 Oxgate Gardens, Brent) is just another illustration of the quirks of Permitted Development Legislation.
LB Brent argued the Prior Approval application should be refused on the basis the enlarged part of the dwelling would extend beyond a wall forming a side elevation of the original dwelling and have a width greater than half the width. The formation of wrap around extension is a common bar to Permitted Development but not necessarily a default reason to refuse planning permission.
The quirk in this case is that the proposal was effectively a combination of two Prior Notification/Approval applications, which were previously approved. To the naked eye and common convention, the two proposals were joined but there is a 5mm gap separating the two extensions. If they were joined, the proposal would fail to comply with Class A sub paragraph (j) (iii) of the GDPO 2015 (as amended). LB Brent argued the gap would not comply because it was not “practical” to construct in such a way. It is surprising LB Brent came to this conclusion given it is well rehearsed that practical construction reasons alone are not a barrier to permitted development.
In the absence of guidance or legislation on the “gap” and based on this decision, why not go further and propose a 1mm gap?
WEA has successfully challenged LB Brent’s interpretation of other components of the General Permitted Development Order and the “fall-back” position this year.
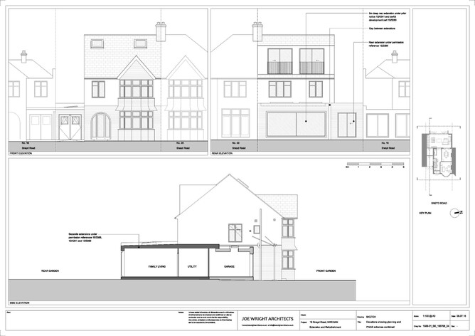
20 Sneyd Road, Cricklewood
LB Brent refused planning permission for a 5 metre deep full width rear extension. However, the client had followed the prior notification and lawful development procedures to its fullest (following later retracted advice from the planning officer).
The Inspector concluded:
“The appellant has followed the prior notification process and has also obtained a lawful development certificate, which establishes that an extension with the same dimensions as that already built, with regard to the critical side boundary, could be erected. It would not be as wide as the extension now being considered but that difference would not alter, in any way, the impact on the residents of 20 Sneyd Road. The lawful extension would represent a fall-back position which would have a high likelihood of being exercised as it would provide the bulk of the accommodation that is provided by the existing development.”
In this scenario, the fallback was a gap of 100mm was noticeable but not material.
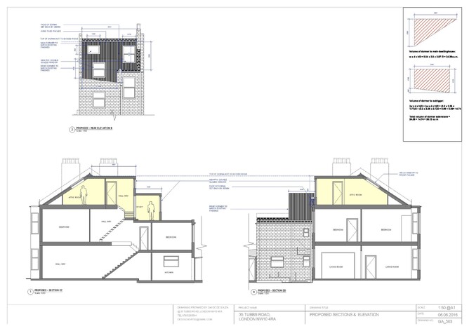
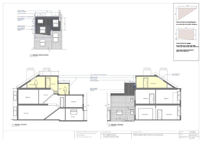
35 Tubbs Road, Willesden
LB Brent decided to refuse a Certificate of Lawfulness for a dormer and outrigger roof extension. They argued the outrigger element would fall under the definition of a Class A roof extension by virtue of the roof slope being too narrow or in Brent’s opinion – "flat".
On the key matter of defining the class of permitted development, the Inspector for this case concluded:
"In my view, as a question of fact and degree, this proposal would involve: the enlargement of a dwellinghouse consisting of additions and alterations to its roofs (main roof and the roof slope of the outrigger), falling within Class B; and other alterations to the roof of the dwellinghouse falling within Class C, insofar as the 2 proposed velux windows in the front roof plane are concerned."
All the cases highlight and element of politics with a small ‘p’ and big P. Development Management/Control team leaders have their quirks and interpretation and that is entirely in line with a bureaucratic process. Politics with a big ‘P’ is always there in the background in trying to control prominent extensions in a locality.
WEA Advice
WEA Planning has submitted similar Prior Approval/Lawful Development Certificate applications in some of the toughest-to-deal-with boroughs in London. We can assist with professional services to residential conversions planning schemes in any London borough. Please contact us to discuss your proposals.

